Nicht zu groß – nicht zu klein – preiswertes EFH in Strehla
55.000 EUR Strehla | Einfamilienhaus - Haus | 96,97 m² | 5 ZimmerObjektdaten:
Beim Verkaufsobjekt handelt es sich um Grundstück mit Einfamilienhaus und Nebengebäude in zentrumsnaher Siedlungslage von Strehla. Das um 1900 erbaute 1 ½-geschossige Gebäude verfügt über eine Wohnfläche von 96,97 m² bei einer Gebäudenutzfläche von 109,30 m².
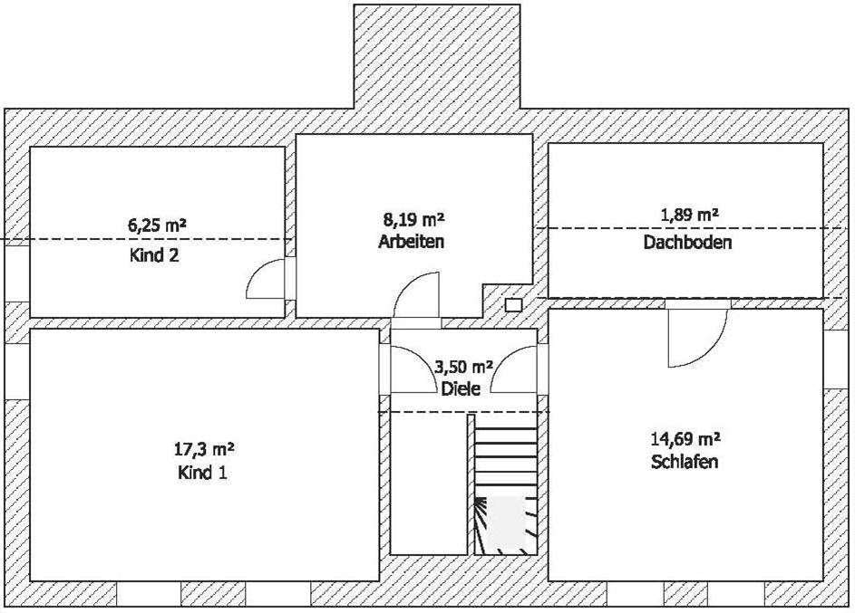
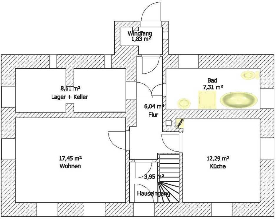
Die räumliche Aufteilung ermöglicht im Erdgeschoss die Nutzung mit Wohnzimmer, Küche und Bad, sowie im Dachgeschoss mit dem Schlafzimmer, 2 Kinderzimmern und einem Arbeitszimmer. Das Gebäude ist nicht unterkellert, sondern besitzt im Erdgeschoss einen Vorratsraum, der ca. 1m unter Fußbodenhöhe ausgeschachtet wurde.
Seit 2005 wurden mit der Sanierung von Dach und Fassade, dem Wechsel der Fenster im Dachgeschoss, der Aufarbeitung der Fensterläden im Erdgeschoss, sowie der Modernisierung von Sanitär und Heizung größere Investitionen getätigt. Die Bausubstanz als gut erhalten einzuschätzen. Um heutigen Wohnstandard zu erreichen, macht sich die umfassende Renovierung aller Wohnräume notwendig. Handlungsbedarf besteht bei der Überarbeitung der Elektroinstallation und dem Wechsel der Fenster im Erdgeschoss, welche funktional in Ordnung, jedoch nicht mehr zeitgemäß sind. Die Erwärmung erfolgt mittels einer Erdgaszentralheizung (Bj. 2023).
Weiterer baulicher Bestandteil ist ein größeres Nebengebäude (Nfl. ca. 52 m²) mit Garage, Abstellraum, Waschhaus und einem Scheunenboden. Der Gartenanteil ist als Grünfläche angelegt.
Alle ortsüblichen, zentralen Medien liegen am Grundstück an und sind eingebunden.
Allgemeines: Strehla ist eine Kleinstadt mit ca. 4.000 Einwohnern im Bundesland Sachsen / Landkreis Meißen gelegen. Die Stadt profitiert von seiner verkehrsgünstigen Lage an der Bundesstraße 182 am Rande der Elbniederungen, und hat sich zu einem bevorzugten Wohnort und touristischen Anziehungspunkt entwickelt. Die Wirtschaft des Ortes ist geprägt durch viele mittelständige Unternehmen. Alle Einrichtungen des täglichen Bedarfs sind ausreichend vorhanden.
Übernahme: Die Übernahme des Gebäudes erfolgt nach Kaufpreiszahlung.
Gebühren: Der Käufer zahlt eine Vermittlungsprovision in Höhe von 3,57 % vom Kaufpreis incl. MwSt..
Irrtum und Zwischenverwertung vorbehalten. Über die Angaben des Verkäufers übernehmen wir keine Gewähr.
| Angebots-ID: | EFH 26092025 |
| Kaufpreis: | 55.000 EUR |
| Provision für Käufer: | 3,57 % vom KP inkl. Mwst. |
| Zimmer: | 5 |
| Badezimmer: | 1 |
| Wohnfläche: | 96,97 m² |
| Grundstücksfläche: | 370 m² |
| Nutzfläche: | 109,30 m² |
| Etagen: | 2 |
| Baujahr: | 1900 |
| Letzte Renovierung: | 2023 |
| Objektzustand: | normal |
| Verfügbar ab: | 01.09.2025 |
| Heizungsart: | Zentralheizung |
| Befeuerungsart: | Erdgas |
| Wert des Endenergiebedarfs: | 92,8 kWh (m²∙a) |
| Art des Energieausweises: | Verbrauchsausweis |
| Energieeffizienzklasse: | C |
01616 Strehla

























