Kleines Wohn- und Geschäftshaus mitten im Stadtzentrum
58.000 EUR Riesa - Riesa-Zentrum | Wohn- und Geschäftshaus | |Objektdaten:
Unser Verkaufsobjekt befindet sich in exponierter Innenstadtlage von Riesa.
Die darin befindliche selbst produzierende Fleischerei wurde über Generationen betrieben und war bis Mitte der 1980 Jahre auch Wohnort des Eigentümers. Die Geschäftstätigkeit wurde im Jahr 2023 beendet.
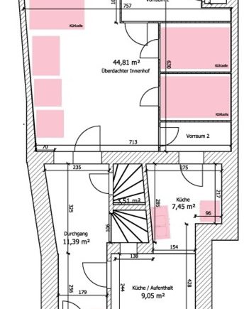
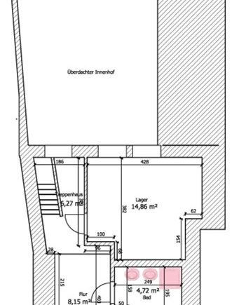
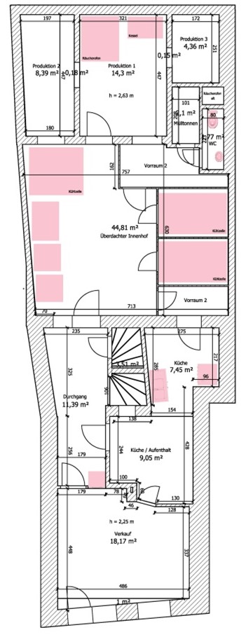
Das 2 ½ geschossige, teilweise unterkellerte Hauptgebäude ist in den einzelnen Etagen wie folgt aufgeteilt: Erdgeschoss: Verkauf und Küche; Obergeschoss: Büro und Lager; Dachgeschoss: Umkleiden, Bad und Lager. Die Gebäudenutzfläche beträgt ca. 150,29 m².
Direkt übergehend vom Haupthaus kommt man durch einen überdachten Innenhof (Nutzfl.: 44,81 m²) zum 2-geschossigen, massivem Nebengebäude, worin die Produktionsräume, Kühlanlagen und weitere Lagerräume zu finden sind. Die Nutzfläche dieses Gebäudes beträgt ca. 31,25 m².
Erbaut um 1890 und baulich erweitert in den 70ziger Jahren, hat man in Jahrzehnten immer wieder Modernisierungen vorgenommen, zuletzt 1992 und 2011 (Fassade, Verkaufsraum, Heizung). Dabei wurde gemäß den behördlichen Bestimmungen besonders auf Anpassungen der Geschäfts- und Produktionsräume wert gelegt. Die ehemaligen Wohnräume waren nach dem Auszug der Familie Bestandteil der Geschäftsräume. Die Bausubstanz kann als gepflegt und gut erhalten eingeschätzt werden. Jedoch ist je nach zukünftiger Nutzungsvariante der Innenausbau zu empfehlen um heutigen Wohnstandard herzustellen.
Das Grundstück ist an alle öffentlichen Medienzuleitungen angeschlossen.
Zur Beachtung:
1. Mit der Aufgabe des Geschäfts ist Betriebsgenehmigung erloschen. Der Verkäufer übernimmt keinerlei Gewähr für zukünftige gewerbliche Nutzungen.
Parallel zum Verkauf des Grundstückes stehen sämtlichen auf den folgenden Fotos ersichtliche Produktionsmaschinen und Ausstattungsteile zum freien Verkauf.
2. Bei Bedarf kann eine separate Garage (ca. 300 m entfernt) erworben werden.
Allgemeines: Riesa ist eine Stadt mit ca. 29.000 Einwohnern im Bundesland Sachsen. Die Stadt profitiert von seiner verkehrsgünstigen Lage zwischen den Großstädten Dresden und Leipzig (Bundesstraßen 6, 169, 182, Anschluss Intercity, Regionalflughafen, Elbehafen). Durch die landschaftlich, schöne Lage an den Elbniederungen und die vielfältigen Freizeitmöglichkeiten entwickelt sich Riesa auch zu einem bevorzugten Wohnort und touristischen Anziehungspunkt.
Übernahme: Die Übernahme des Gebäudes erfolgt nach Kaufpreiszahlung.
Gebühren: Der Käufer zahlt eine Vermittlungsprovision in Höhe von 3,57 % vom Kaufpreis incl. MwSt..
Irrtum und Zwischenverwertung vorbehalten. Über die Angaben des Verkäufers übernehmen wir keine Gewähr.
| Angebots-ID: | GEW 34022026 |
| Kaufpreis: | 58.000 EUR |
| Provision für Käufer: | 3,57 % vom KP inkl. Mwst. |
| Grundstücksfläche: | 150 m² |
| Nutzfläche: | 150,29 m² |
| Etagen: | 3 |
| Baujahr: | 1890 |
| Letzte Renovierung: | 2011 |
| Objektzustand: | normal |
| Verfügbar ab: | Kaufpreiszahlung |
| Heizungsart: | Zentralheizung |
| Befeuerungsart: | Erdgas |
| Wert des Endenergiebedarfs: | Wärme 126,2 kWh (m²∙a), Strom 133,7 kWh (m²∙a) |
| Art des Energieausweises: | Verbrauchsausweis |
01589 Riesa


























