Ein Haus zum Vorzeigen !
690.000,00 EUR Riesa - Riesa-Zentrum | Wohn- und Geschäftshaus | 779,47m² |Objektdaten:
Beim Verkaufsobjekt handelt es sich eines der schönsten Wohn- und Geschäftshäuser (Baujahr um 1905) der Stadt Riesa. Das Gebäude wurde in den Jahren 1996/97 umfassend restauriert und modernisiert. Dabei wurde insbesondere auf die Erhaltung und Erneuerung der unter Denkmalschutz stehenden Fassade, verbunden mit der Wiederherstellung des markanten Turmes, wertgelegt. Originale bauliche Details wie Stuckdecken wurden aufgearbeitet und die Mehrzahl der Türen wurden erhalten. Farben, Tapeten, Spachtellasuren und Bodenbeläge betonen den repräsentativen Charakter.
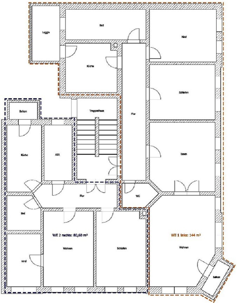
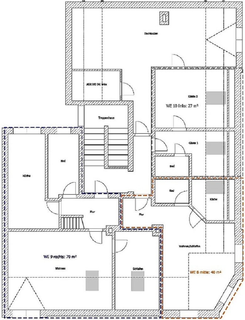
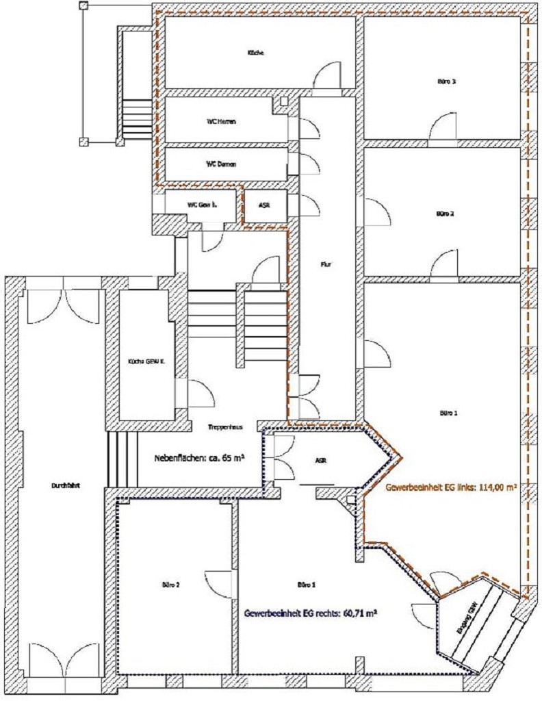
Das 4 ½ – geschossige, voll unterkellerte Gebäude besitzt eine Gesamtmietfläche von 954,18 m², welche in 9 Wohneinheiten und 2 Gewerbeeinheiten aufgeteilt wurde. Alle Einheiten sind vermietet. Die jährliche Kaltmiete beläuft sich aktuell auf 58.215,12 €. Man findet einen Mix aus von 1 RW bis 4 RW vor. Einige Wohnungen besitzen auf der Hofseite Balkone und Wintergärten, die DG WE auch eine Dachterrasse mit Südausrichtung. Im Dachgeschoss wurde neben den beiden Wohnungen zusätzlich eine Gästewohnung eingerichtet. Im Keller befinden sich der Heizungsraum, die Mieterkeller, sowie ein Gemeinschaftsraum für Feierlichkeiten. Weiterer Gebäudeteil ist eine Garage im Innenhof, die als Fahrradabstellraum genutzt wird.
Die Bausubstanz ist als altersgemäß sehr gut erhalten einzuschätzen. Renovierungsarbeiten sind bei Bedarf und Mieterwechsel auszuführen. Die Beheizung erfolgt über eine Erdgasbrennwerttherme (Bj. 2015).
Alle ortsüblichen zentralen Medien liegen am Grundstück an und sind eingebunden.
Zur Beachtung Eintrag in Denkmalliste: Mietshaus in geschlossener Bebauung in Ecklage mit Tordurchfahrt und Eckladen sowie Vorgarten und Einfriedung, Klinkerfassade, großes Wohngebäude in exponierter Ecklage
Allgemeines: Riesa ist eine Stadt mit ca. 29.000 Einwohnern im Bundesland Sachsen. Die Stadt profitiert immer mehr von seiner verkehrsgünstigen Lage zwischen den Großstädten Dresden und Leipzig (Bundesstraßen 6, 169, 182, Anschluss Intercity, Regionalflughafen, Elbehafen). Durch die landschaftlich, schöne Lage an den Elbniederungen und die vielfältigen Freizeitmöglichkeiten entwickelt sich Riesa auch zu einem bevorzugten Wohnort und touristischen Anziehungspunkt. Besonders die Ausrichtung verschiedener internationaler Sportwettkämpfe hat der Stadt mittlerweile Weltruf eingebracht.
Übernahme: Die Übernahme des Gebäudes erfolgt zum Ersten des auf die Kaufpreiszahlung folgenden Monats.
Gebühren: Der Käufer zahlt eine Vermittlungsprovision in Höhe von 3,57 % inkl. MwSt.
Irrtum und Zwischenverwertung vorbehalten. Über die Angaben des Verkäufers übernehmen wir keine Gewähr.
| Angebots-ID: | WGH 57022026 |
| Kaufpreis: | 690.000,00 EUR |
| Provision für Käufer: | 3,57 % vom KP inkl. Mwst. |
| Wohnfläche: | 779,47 m² |
| Grundstücksfläche: | 430,00 m² |
| Verkaufsfläche: | 174,71 m² |
| Etagen: | 5 |
| Baujahr: | 1905 |
| Letzte Renovierung: | 1997 |
| Objektzustand: | normal |
| Verfügbar ab: | Kaufpreiszahlung |
| Heizungsart: | Zentralheizung |
| Befeuerungsart: | Erdgas |
| Wert des Endenergiebedarfs: | 99,7 kWh (m²∙a) |
| Art des Energieausweises: | Verbrauchsausweis |
01589 Riesa


































