Dieser Hof ist eine kreative Oase !
190.000 EUR Schmorkau | Bauernhof - Haus | 168m² | 8 ZimmerObjektbeschreibung:
Bei diesem besonderen Verkaufsobjekt handelt es sich um ein ehemaliges Künstler- und Töpferanwesen in ruhiger, ländlicher Siedlungslage von Schmorkau bei Oschatz.
Das großzügige Grundstück ist mit einem zweieinhalbgeschossigen Wohnhaus mit Werkstattanbau sowie einem zweigeschossigen Nebengebäude bebaut. Die Gebäude stammen aus den Jahren um 1900 bzw. 1920 und wurden über die Jahrzehnte liebevoll gepflegt und modernisiert.
Wohnhaus:
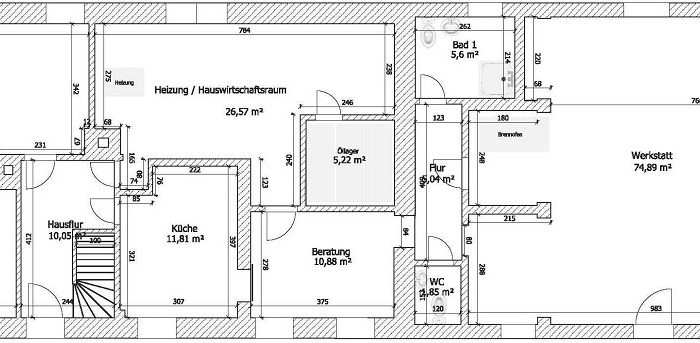
Das Hauptgebäude verfügt über eine Gesamtwohnfläche von ca. 168 m² sowie eine Nutzfläche von insgesamt ca. 368 m², davon ca. 75 m² Werkstattfläche im Anbau.
Im Erdgeschoss befinden sich Küche, Esszimmer, Arbeitszimmer und ein Bad mit Dusche.
Über den Hauswirtschaftsraum – in dem sich Heizung (Baujahr 1995) und Öllager (3.000 l) befinden – gelangt man direkt in den Werkstattbereich. Wohnhaus und Werkstatt verfügen jeweils über eigene Außenzugänge.
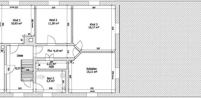
Im Obergeschoss liegen Wohnzimmer, Schlafzimmer, drei Kinderzimmer sowie ein weiteres Duschbad. Der Dachboden bietet zwei abschließbare Kammern und zusätzliche Abstellfläche.
In den 1990er Jahren wurden umfangreiche Modernisierungen durchgeführt (u. a. Heizung, Sanitär, Fenster). Das Gebäude befindet sich in einem altersgemäß ordentlichen Zustand und kann nach üblichen Renovierungsarbeiten kurzfristig bezogen werden. Langfristig sollten Sanierungsmaßnahmen an Dach, Fassade und Haustechnik eingeplant werden. Ein Dachausbau zur Erweiterung der Wohnfläche ist möglich.
Nebengebäude:
Das zweigeschossige Nebengebäude (Bj. ca. 1920) bietet eine Nutzfläche von ca. 282 m². Es umfasst Garage, Werkstatt, Abstellräume, einen Gesellschaftsraum mit Kamin, eine Küche sowie einen Ausstellungs- bzw. Präsentationsraum für Kunstobjekte. Der Dachboden wird derzeit als Lagerfläche genutzt.
Grundstück:
Das weitläufige Grundstück beeindruckt mit einem parkähnlichen Garten.
Der rückwärtige Teil mit Nadel- und Laubbaumbestand wird überwiegend als Wiese genutzt und eignet sich ideal für Obst- und Gemüseanbau oder kleiner Tierhaltung.
Gemütliche Sitzplätze im Gartenpavillon und unter der überdachten Hofterrasse laden zum Verweilen ein. Auf der kleinen überdachten Bühne fanden in der Vergangenheit Konzerte und kulturelle Veranstaltungen statt – ein Ort mit besonderer Atmosphäre und Geschichte.
Medienanbindung:
Das Grundstück ist an alle ortsüblichen Medien angeschlossen, das Abwasser wird über eine biologische Kläranlage entsorgt.
Historie und Nutzungsmöglichkeiten:
Der Hof blickt auf eine lange kulturelle Tradition zurück: Einst als Bäckerei und Landcafé genutzt, wurde das Anwesen in den 1970er Jahren zum Töpferhof umgestaltet. Über Jahrzehnte fanden hier Kurse, Kunst-Camps, Kinder- und Jugendprojekte, Ausstellungen, kleine Konzerte, Chorauftritte und Lesungen statt.
Nun sucht dieses außergewöhnliche Anwesen neue, kreative Eigentümer, die die Tradition fortführen oder eigene Ideen verwirklichen möchten – sei es als Atelier, Werkstatt, Kulturort oder großzügiges Wohnhaus.
Auch für Keramiker, Bildhauer, Kunsthandwerker oder Selbstversorger bietet die Immobilie hervorragende Voraussetzungen. Bei Interesse können vorhandene Maschinen und Materialien als Einstiegshilfe übernommen werden.
Allgemeines: Schmorkau, ein Dorf mit ca. 300 Einwohnern ist ein Stadtteil der Großen Kreisstadt Oschatz im Landkreis Torgau/Oschatz, Bundesland Sachsen. Die Ortschaft liegt landschaftlich schön am Rande der Döllnitz-Aue. Durch die verkehrsgünstige Lage mit kurzem Weg zur Bundesstraße 6 sind die umliegenden größeren Städte schnell erreichbar. Einrichtungen des täglichen Bedarfs sind in kurzer Entfernung ausreichend vorhanden
Übernahme: Die Übernahme des Gebäudes erfolgt nach Kaufpreiszahlung, jedoch nicht vor dem 01.03.2026.
Gebühren: Der Käufer zahlt eine Vermittlungsprovision in Höhe von 3,57 % incl. MwSt.. Irrtum und Zwischenverwertung vorbehalten. Über die Angaben des Verkäufers übernehmen wir keine Gewähr.
| Angebots-ID: | EFH 35112025 |
| Kaufpreis: | 190.000 EUR |
| Provision für Käufer: | 3,57 % vom KP inkl. Mwst. |
| Zimmer: | 8 |
| Badezimmer: | 2 |
| Wohnfläche: | 168 m² |
| Grundstücksfläche: | 2188 m² |
| Nutzfläche: | 368 m² |
| Baujahr: | 1900 |
| Letzte Renovierung: | 2015 |
| Objektzustand: | gepflegt |
| Verfügbar ab: | 01.03.2026 |
| Heizungsart: | Zentralheizung |
| Befeuerungsart: | Öl |
| Wert des Endenergiebedarfs: | 298,4 kWh (m²∙a) |
| Art des Energieausweises: | Bedarfsausweis |
04758 Oschatz, OT Schmorkau





































